8 Bennington Rd

Morris Twp, NJ 07960


 

Price: $1,379,000

GSMLS:  4017644
Type: Single Family
Style: Colonial
Beds: 5
Baths: 4 Full
Garage: 2-Car
Year Built: 1966
Acres: 0.35
Property Tax: $14,966
Description
Open House Friday 2PM–6PM.
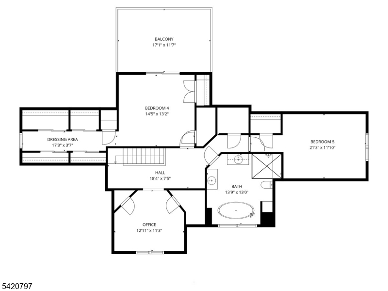
Nestled in a desirable Morris County community, this custom-built Colonial sits on a beautifully manicured lot, offering space, comfort, and lifestyle convenience. This expansive home features 5 bedrooms, 4 baths, a 2-car garage, and exceptional outdoor living with a spacious deck, private balcony, and covered patio. A charming front porch opens to a sun-filled living room and formal dining area with hardwood floors, crown molding, and walls of windows with sliding glass doors. A cozy fireplace anchors the space. The expansive deck seamlessly connects both main living areas, creating an ideal flow for indoor-outdoor entertaining. The spacious kitchen offers custom cabinetry, granite countertops, SS appliances, wet bar, a center island, and a bright breakfast nook. The main level includes a primary suite with en-suite bath, plus 2 additional bedrooms and a hall bath. Upstairs features 2 large bedrooms, one with multiple closets and a private balcony, a sunlit office, and a renovated full bath with a chick soaking tub, separate shower, and dual vanity. The lower level offers a large recreation room with a 2nd fireplace, full bath, storage, garage access, and sliding doors to a covered patio. Enjoy all that Morristown has to offer, including a vibrant downtown with renowned restaurants, boutique shopping, theaters, cultural attractions, along with beautiful parks, trails, and access to a nearby town pool. Convenient to major highways and NJ Transit for a direct NYC commute.
Rooms Sizes
Kitchen:
16x19 First
Dining Room:
15x13 First
Living Room:
18x26 First
Family Room:
First
Den:
13x11 Second
Bedroom 1:
17x15 First
Bedroom 2:
17x13 First
Bedroom 3:
10x13 First
Bedroom 4:
14x13 Second
Room Levels
Basement:
BathOthr,GarEnter,RecRoom,Storage,Walkout
Ground:
n/a
Level 1:
3Bedroom,BathMain,BathOthr,DiningRm,FamilyRm,Kitchen,LivingRm,Porch,Walkout
Level 2:
2 Bedrooms, Bath(s) Other, Office, Porch
Level 3:
n/a
Level Other:
n/a
Room Features
Kitchen:
Eat-In Kitchen, Pantry, Separate Dining Area
Dining Room:
Formal Dining Room
Master Bedroom:
1st Floor, Full Bath
Bath:
Stall Shower
Interior Features
Square Foot:
n/a
Year Renovated:
n/a
Basement:
Yes - Finished, Walkout
Full Baths:
4
Half Baths:
0
Appliances:
Carbon Monoxide Detector, Dishwasher, Generator-Built-In, Microwave Oven, Range/Oven-Electric, Refrigerator, Wall Oven(s) - Electric, Wine Refrigerator
Flooring:
Carpeting, Tile, Wood
Fireplaces:
2
Fireplace:
Living Room, Rec Room
Interior:
BarWet,CODetect,SmokeDet,SoakTub,StallTub,WlkInCls
Exterior Features
Garage Space:
2-Car
Garage:
Attached,InEntrnc,Oversize
Driveway:
2 Car Width, Blacktop, Driveway-Exclusive
Roof:
Asphalt Shingle
Exterior:
Brick, Vinyl Siding
Swimming Pool:
No
Pool:
n/a
Utilities
Heating System:
Forced Hot Air, Multi-Zone
Heating Source:
Gas-Natural
Cooling:
Central Air
Water Heater:
Gas
Water:
Public Water
Sewer:
Public Sewer
Services:
n/a
Lot Features
Acres:
0.35
Lot Dimensions:
n/a
Lot Features:
Level Lot
School Information
Elementary:
n/a
Middle:
n/a
High School:
Morristown High School (9-12)
Community Information
County:
Morris
Town:
Morris Twp.
Neighborhood:
n/a
Application Fee:
n/a
Association Fee:
n/a
Fee Includes:
n/a
Amenities:
n/a
Pets:
n/a
Financial Considerations
List Price:
$1,379,000
Tax Amount:
$14,966
Land Assessment:
$367,500
Build. Assessment:
$393,000
Total Assessment:
$760,500
Tax Rate:
1.97
Tax Year:
2025
Ownership Type:
Fee Simple
Listing Information
MLS ID:
4017644
List Date:
03-31-2026
Days On Market:
0
Listing Broker:
KELLER WILLIAMS METROPOLITAN
Listing Agent:
Peter Lorenzo
 

Request More Information

Shawn and Diane Fox
RE/MAX American Dream
3108 Route 10 West
Denville, NJ 07834
Call: (973) 277-7853
Web: BoulderRidgeNJ.com


RE/MAX

Town & Valley II

211 Route 10 East
Succasunna, NJ 07876
Office: (973) 598-1008


Shawn and Diane Fox